Über uns
Unternehmen
Geschichte
Kontakt
Standorte
Team
Kompetenzen
Übersicht
Gebäudeaufnahmen
Bauvermessung
Überwachung / Geomonitoring
Beweissicherung
Geotechnische Messung
News
News
Filme
Karriere
Arbeiten bei der Terradata AG
Stellenangebote
Berufslehre
Kontakt
Geoterra Gruppe
Startseite
Über uns
Unternehmen
Geschichte
Kontakt
Standorte
Team
Kompetenzen
Übersicht
Gebäudeaufnahmen
Bauvermessung
Überwachung / Geomonitoring
Beweissicherung
Geotechnische Messung
News
News
Filme
Karriere
Arbeiten bei der Terradata AG
Stellenangebote
Berufslehre
Kontakt
Geoterra Gruppe
Offene, ehrliche und vertrauenswürdige Zusammenarbeit auf Augenhöhe mit unseren Mitarbeitenden, Kunden und Partnern macht uns erfolgreich.
Mario Studer
Teamleiter Monitoring
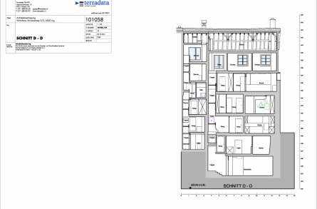
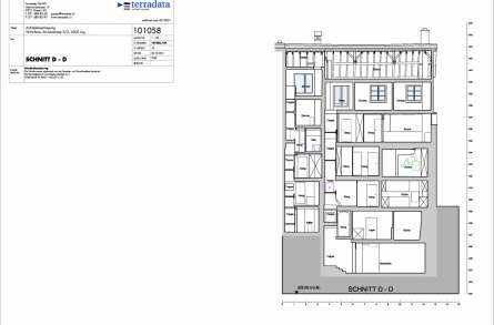
Architekturvermessung Kirchenstrasse, Zug
Zeitraum
Oktober 2012
Auftraggeber
Baudepartement Stadt Zug
Referenz als PDF
Erbrachte Leistungen
Gebäudeaufnahmen:
2D Fassadenpläne
2D Grundrisspläne
2D Schnittpläne
Projektbeschrieb
Für den geplanten Umbau wurde das Gebäude mittels 3D-Laserscanner und Tachymeter neu vermessen und es wurden 2D-Pläne erstellt.
Weitere Bilder
Zurück zur Übersicht
www.terradata.ch
Terradata AG
47.42269244176043
8.556741753626346
Alpenstrasse 3
8152
Glattpark (Opfikon)
044 206 11 33
nospam_
zuerich
@
terradata.ch
www.terradata.ch
Terradata AG
47.201313
8.779505
Churerstrasse 44a
8808
Pfäffikon SZ
055 420 22 20
nospam_
pfaeffikon
@
terradata.ch
www.terradata.ch
Terradata AG
47.145273
8.430668
Grundstrasse 10
6343
Rotkreuz
041 790 00 90
nospam_
rotkreuz
@
terradata.ch
www.terradata.ch
Terradata AG
47.134997
8.746698
Alpstrasse 4
8840
Einsiedeln
055 418 30 09
nospam_
einsiedeln
@
terradata.ch
www.terradata.ch
Terradata AG
47.0260
8.6548329
Oberfeld 45
6430
Schwyz
041 819 00 10
nospam_
schwyz
@
terradata.ch
www.terradata.ch
Terradata AG
47.410743
9.276476
Lagerstrasse 4
9200
Gossau SG
071 388 15 60
nospam_
gossau
@
terradata.ch
www.
Terradata AG
46.293174932691784
7.8792815288357705
Brückenweg 14
3930
Visp
058 513 59 40
nospam_
visp
@
terradata.ch
www.terradata.ch
nospam_
info
@
terradata.ch
Ein Unternehmen der Geoterra Gruppe
Datenschutzerklärung
© Copyright Terradata AG
Webdesign by Andeo AG