Komplexe Daten verständlich auf den Punkt gebracht – das ist unser Anspruch.

Michael Vogt
Leitung Development & Analytics

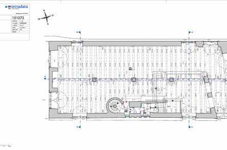
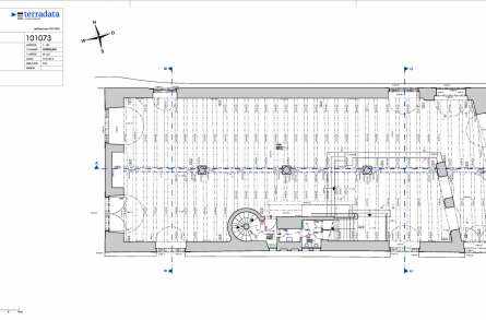
Architekturvermessung Waaghaus St. Gallen

Architekturvermessung
Waaghaus St. Gallen, Gebäudeaufnahmen:, Fassadenpläne, Grundrisspläne, Schnittpläne, Fotodokumentation

 

Zeitraum


Januar 2013

Auftraggeber


Hochbauamt Stadt St. Gallen

Planer


-
Referenz als PDF

Erbrachte Leistungen

Gebäudeaufnahmen:
Fassadenpläne
Grundrisspläne
Schnittpläne
Fotodokumentation

Projektbeschrieb

Das weitbekannte Waaghaus im Zentrum von St. Gallen, in welchem das Stadtparlament tagt, soll saniert werden. Als Basis für die Detailprojektierung wurde das Gebäude mittels 3D-Laserscanner und Tachymeter aufgenommen und die gewünschten 2D-Pläne wurden erstellt.

Weitere Bilder